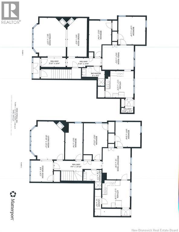
Substantially renovated inside and out, this charming 1920s 3-unit property is ideal for investors or homeowners seeking passive income. Live in one suite and let the other two generate steady revenue. The top two units retain original period character with modern updates for comfort and style. The lower unit, (131 Carmarthen) built in the past four years, has contemporary finishes. The top suite (194 Duke) has three spacious bedrooms, while the other two units offer two bedrooms each. All units include new kitchens and bathrooms, ample storage, and abundant windows for bright, airy living spaces. Located just four blocks from Uptown Saint Johns amenitiesshops, restaurants, entertainmentand close to schools and public transit. Recent upgrades (circa 2020) include new plumbing, electrical, windows, exterior siding, and heating systems for peace of mind. Tenants pay all utilities, minimizing owner costs. The two upper units are leased to reliable, stable tenants; the recently vacated bottom unit is ready for your move-in or a new tenant. This turnkey property stands out as a smart investment or a wonderful home in a vibrant neighbourhood with strong financials. (id:4069)
Address
194-196 Duke Street
List Price
$599,000
Property Type
Multi-family
Type of Dwelling
Multi-family
Transaction Type
Sale
Area
New Brunswick
Sub-Area
Saint John
Floor Area
4,000 Sq. Ft.
Lot Size
152 Sq. Ft.
Year Built
2023
MLS® Number
NB133173
Listing Brokerage
SUTTON GROUP AURORA REALTY LTD.
Basement Area
Full (Finished)
Postal Code
E2L1N8




































